Immobile in ristrutturazione/costruzione

In vendita
Porto Ceresio - Via casamora, 29
120.000 €
Stabile / Palazzo
Categoria
255
m2
8
Locali
6
Camere
6
Bagni
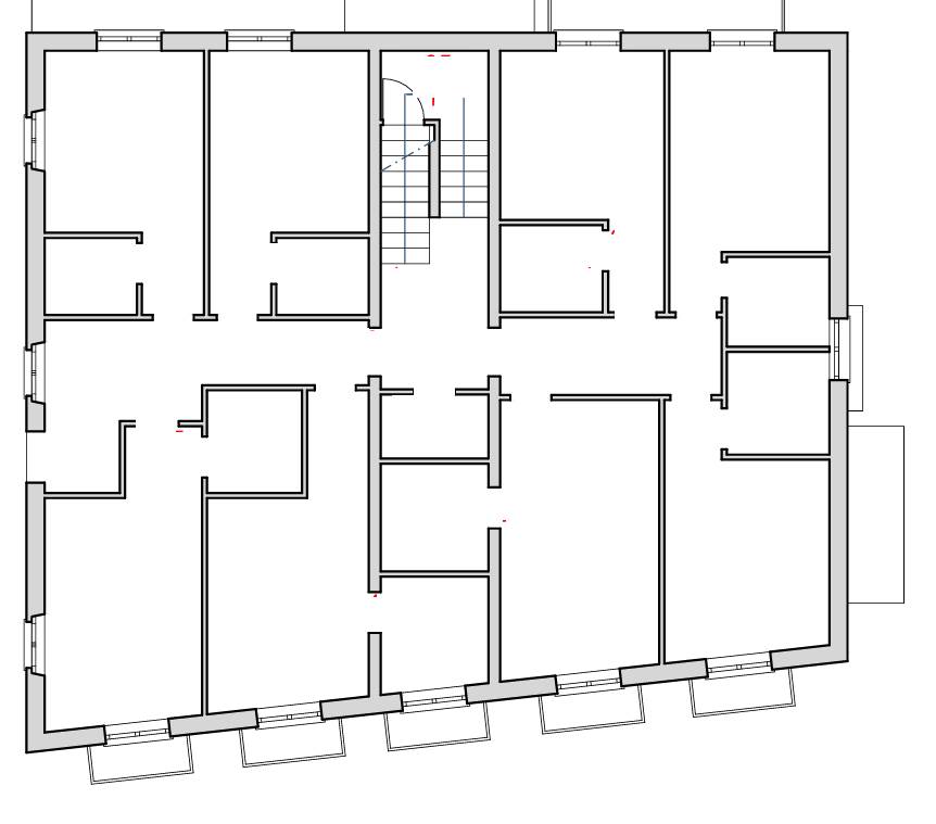
Descrizione
unità immobiliare, ancora in corso di definizione (in cantiere), sita al p. 3, con lastrico solare ad uso esclusivo al p. 4 (collegato con scala interna), inserita in un fabbricato plurifamiliare
Composta da: ingresso/disimpegno, cucina/pranzo con piccolo balcone, sei camere ognuna con bagno (cinque con piccolo balcone), ripostiglio al piano terzo; bussola/veranda esagonale di sbarco scala a lastrico solare di grandi dimensioni ad uso esclusivo al piano quarto (copertura).

CONTATTACI SUBITO!
PER ESEGUIRE IN TOTALE SICUREZZA TUTTE LE PROCEDURE IN ASTA SERVONO ALCUNI GIORNI!

"Biproget Group " è lo studio di consulenza che ti può accompagnare per tutto il percorso relativo all'acquisto tramite asta giudiziaria, compresa l'assistenza per le nuove procedure TELEMATICHE;
l'immobile viene venduto dal tribunale e il prezzo indicato si riferisce all'offerta minima, per assistenza e consulenza chiamare Tel. 0331.784.170
Caratteristiche principali
Codice:
V006249
Città:
Porto Ceresio
Categoria:
Stabile / Palazzo
Locali:
8
Camere:
6
Bagni:
6
Mq:
255
Balconi:
6
Mq Balcone:
12,45
Terrazzi:
2
mq Terrazzo:
174
Piano:
3
Classe energetica:
Non classificabile
Stato Immobile:
In Costruzione
Grado:
Signorile
Posizione:
Lago
Panorama:
Vista Lago
Mappa
Cookie preference