Stabile di 3 appartamenti

In vendita
Grantola - Via fratelli bandiera, 6
80.000 €
Porzione di Casa
Categoria
135
m2
8
Locali
5
Camere
3
Bagni
Descrizione
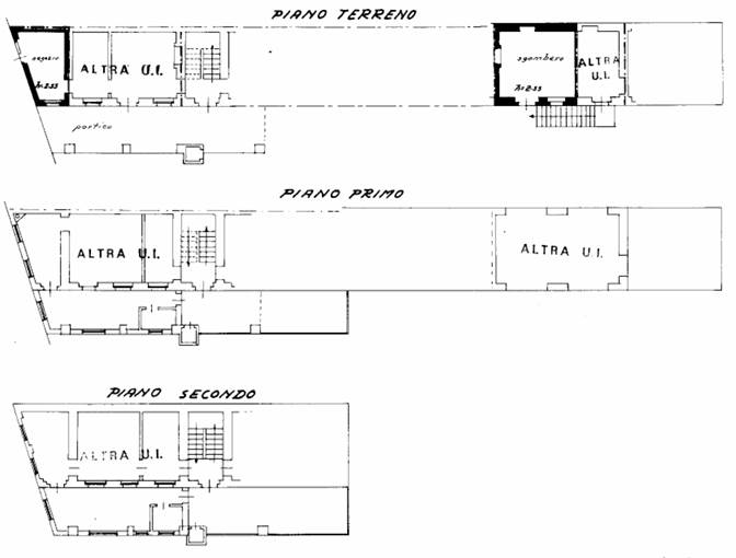
Stabile di 3 appartamenti, con locale sgombero-legnaia-cantina
-Piano terra : Ingresso, cucina, soggiorno, bagno camera
-Primo piano: Ingresso, cucina, soggiorno, bagno 2 camere
-Secondo piano: Ingresso, cucina, soggiorno, bagno 2 camere, terrazzo
-Sottotetto al rustico


CONTATTACI SUBITO!
PER ESEGUIRE IN TOTALE SICUREZZA TUTTE LE PROCEDURE IN ASTA SERVONO ALCUNI GIORNI!

"Biproget Group " è lo studio di consulenza che ti può accompagnare per tutto il percorso relativo all'acquisto tramite asta giudiziaria, compresa l'assistenza per le nuove procedure TELEMATICHE;
l'immobile viene venduto dal tribunale e il prezzo indicato si riferisce all'offerta minima, per assistenza e consulenza chiamare Tel. 0331.784.170
Possibilità di mutuo 100%, ulteriori vantaggi se acquisti la prima casa.
Caratteristiche principali
Codice:
V006156
Città:
Grantola
Categoria:
Porzione di Casa
Locali:
8
Camere:
5
Bagni:
3
Mq:
135
Terrazzi:
1
Piano:
Terra
Classe energetica:
G
Mappa
Cookie preference