Appartamento in vendita a Parabiago

In vendita
Parabiago - Piazza Libertà, 17
54.750 €
Appartamento
Categoria
79,68
m2
4
Locali
1
Camere
1
Bagni
Descrizione
OTTIMA OCCASIONE - ASTA IMMOBILIARE
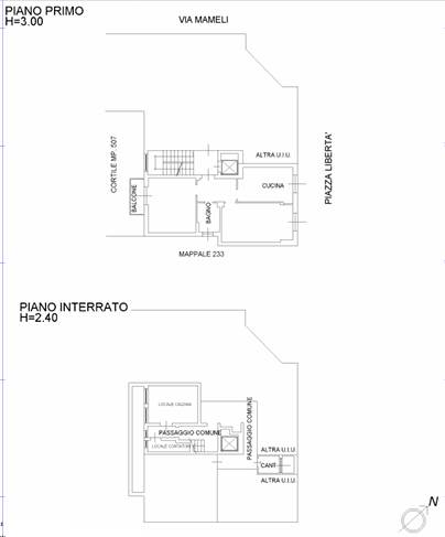
Appartamento posto al piano primo di un edificio condominiale di 5 piani, dotato di ascensore, composto da ingresso, sala, cucina e camera da letto, bagno, balcone e cantina pertinenziale.

"Biproget Group " è lo studio di consulenza che ti può accompagnare per tutto il percorso relativo all'acquisto tramite asta giudiziaria, compresa l'assistenza per le nuove procedure TELEMATICHE;
l'immobile viene venduto dal tribunale e il prezzo indicato si riferisce all'offerta minima, per assistenza e consulenza chiamare Tel. 0331784051
Possibilità di mutuo 100%, ulteriori vantaggi se acquisti la prima casa.

Caratteristiche principali
Codice:
V006123
Città:
Parabiago
Categoria:
Appartamento
Locali:
4
Camere:
1
Bagni:
1
Mq:
79,68
Balconi:
1
Mq Balcone:
3,7
Piano:
1
Classe energetica:
Non dichiarata
Riscaldamento:
Centralizzato
Tipo Riscaldam.:
Caldaia
Tipo Impianto:
Pavimento
Accessori
Ascensore
Mappa
Planimetrie
Cookie preference