Ufficio

In vendita
Somma Lombardo - Via francesco campana, 10
48.000 €
Ufficio
Categoria
70
m2
2
Locali
1
Bagni
Descrizione
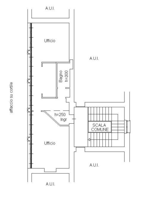
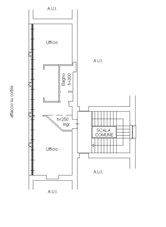
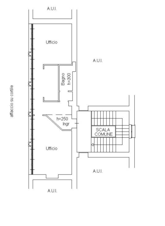
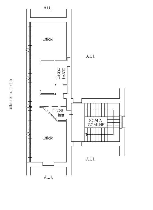
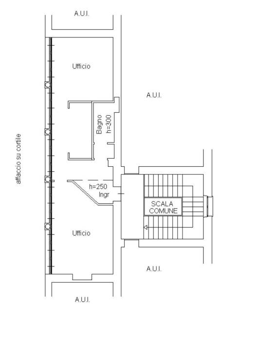
Unità immobiliare, a parte di complesso condominiale denominato Il Glicine, posta al primo piano e composta da due vani ufficio, corridoio, area di servizio e un piccolo servizio igienico con relativo antibagno.

CONTATTACI SUBITO!
PER ESEGUIRE IN TOTALE SICUREZZA TUTTE LE PROCEDURE IN ASTA SERVONO ALCUNI GIORNI!

"Biproget Group " è lo studio di consulenza che ti può accompagnare per tutto il percorso relativo all'acquisto tramite asta giudiziaria, compresa l'assistenza per le nuove procedure TELEMATICHE;
l'immobile viene venduto dal tribunale e il prezzo indicato si riferisce all'offerta minima, per assistenza e consulenza chiamare Tel. 0331.784.170
Caratteristiche principali
Codice:
V006080
Città:
Somma Lombardo
Categoria:
Ufficio
Locali:
2
Bagni:
1
Mq:
70
Piano:
1
Classe energetica:
G
Mappa
Cookie preference