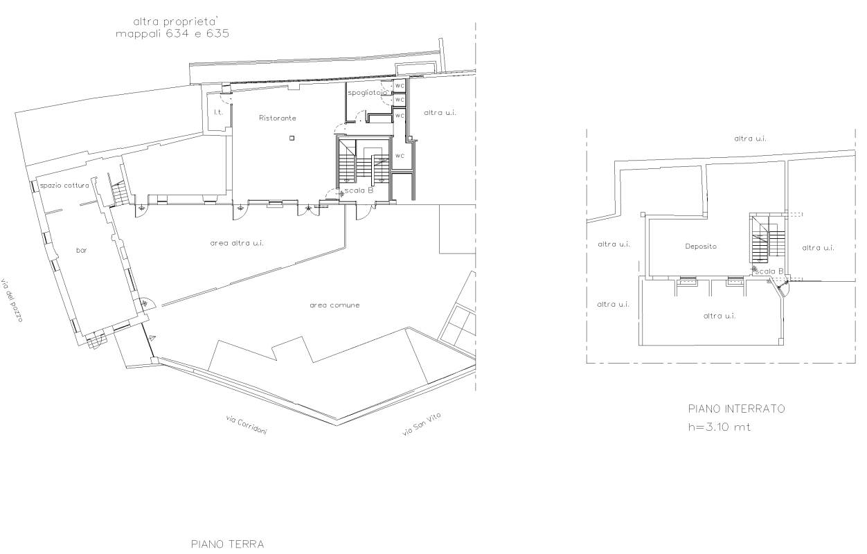
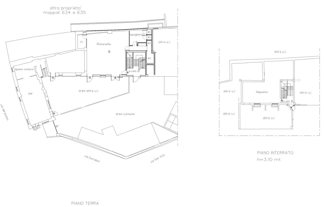
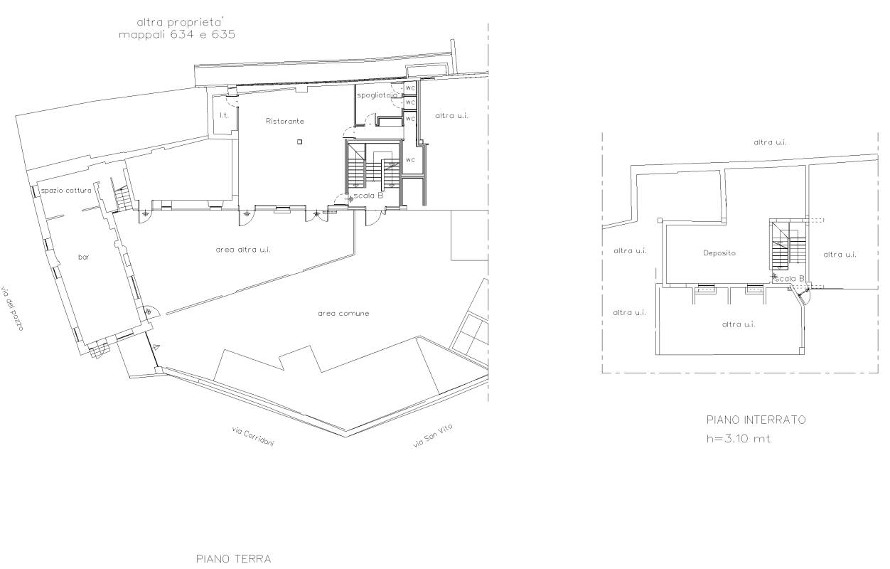
Bar con spazio cottura

In vendita
Gavirate - Via corridoni, 2
47.891 €
Negozio
Categoria
80
m2
1
Posti auto
Descrizione
Unità commerciale composta da zona bar, spazio cottura, ristorante, locale tecnico, blocco wc/spogliatoio al piano terra con annesso deposito al piano interrato,
area urbana posta al piano terra di mq 80,
posto auto scoperto posto al piano terra di mq. 13

CONTATTACI SUBITO!
PER ESEGUIRE IN TOTALE SICUREZZA TUTTE LE PROCEDURE IN ASTA SERVONO ALCUNI GIORNI!

"Biproget Group " è lo studio di consulenza che ti può accompagnare per tutto il percorso relativo all'acquisto tramite asta giudiziaria, compresa l'assistenza per le nuove procedure TELEMATICHE;
l'immobile viene venduto dal tribunale e il prezzo indicato si riferisce all'offerta minima, per assistenza e consulenza chiamare Tel. 0331.784.170
Caratteristiche principali
Codice:
V006070
Città:
Gavirate
Categoria:
Negozio
Mq:
80
Posti auto:
1
Classe energetica:
G
Mappa
Cookie preference