3 locali in vendita a Mesenzana

In vendita
Mesenzana - Via Piano, 7
33.750 €
3 locali
Categoria
63
m2
3
Locali
2
Camere
1
Bagni
1
Box
Descrizione
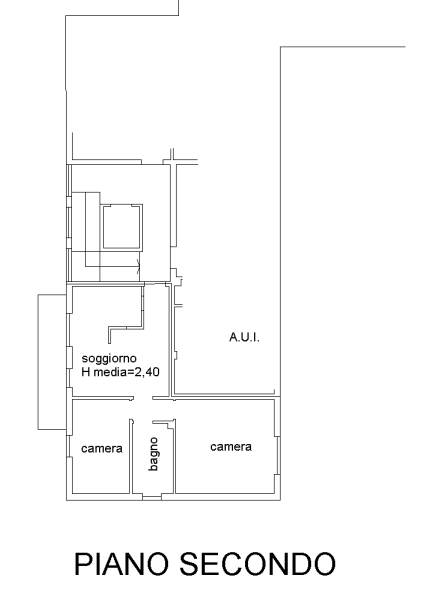
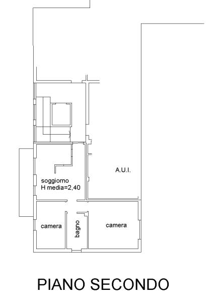
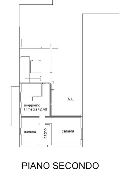
appartamento al 2p mansardato composto da ingresso-soggiorno-cucina con balcone, disimpegno, bagno e 2 camere, oltre a box

CONTATTACI SUBITO!
PER ESEGUIRE IN TOTALE SICUREZZA TUTTE LE PROCEDURE IN ASTA SERVONO ALCUNI GIORNI!

"Biproget Group " è lo studio di consulenza che ti può accompagnare per tutto il percorso relativo all'acquisto tramite asta giudiziaria, compresa l'assistenza per le nuove procedure TELEMATICHE;
l'immobile viene venduto dal tribunale e il prezzo indicato si riferisce all'offerta minima, per assistenza e consulenza chiamare Tel. 0331.784.170
Possibilità di mutuo 100%, ulteriori vantaggi se acquisti la prima casa.
Caratteristiche principali
Codice:
V006042
Città:
Mesenzana
Categoria:
3 locali
Locali:
3
Camere:
2
Bagni:
1
Mq:
63
Box:
1
Mq Balcone:
6
Piano:
2
Classe energetica:
G
Accessori
Ascensore
Mappa
Cookie preference