Appartamento con due camere doppie, cantina e box auto

In vendita
Milano - Piazza dei Daini, 2/4
360.000 €
Appartamento
Categoria
111
m2
6,5
Locali
2
Bagni
1
Box
Descrizione
OTTIMA OCCASIONE - ASTA IMMOBILIARE
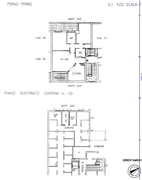
Appartamento sito al piano primo della Scala F di un complesso condominiale dotato di ascensore, distinto con il numero interno 42G, composto da tre locali oltre servizi, con annesso un vano di cantina al piano interrato, distinto con il numero interno 1019 e box singolo pertinenziale.
L'immobile è composto da ingresso, soggiorno, cucina con balcone, disimpegno, ripostiglio, bagno principale, bagno cieco, due camere doppie con annesso un vano di cantina al piano interrato e box singolo pertinenziale.
L'immobile è ubicato nel quartiere Bicocca distante circa 700 metri dalla
metropolitana M5 (Bicocca) e circa 600 metri dalla stazione FS Milano Greco Pirelli.

"Biproget Group " è lo studio di consulenza che ti può accompagnare per tutto il percorso relativo all'acquisto tramite asta giudiziaria, compresa l'assistenza per le nuove procedure TELEMATICHE;
l'immobile viene venduto dal tribunale e il prezzo indicato si riferisce all'offerta minima, per assistenza e consulenza chiamare Tel. 0331/784170
Possibilità di mutuo 100%, ulteriori vantaggi se acquisti la prima casa.
· Hai problemi con le rate del mutuo?
· Hai ricevuto un pignoramento del tuo immobile?
· Hai già la tua casa all’asta con data fissata?
Il nostro Team di esperti Professionisti e Avvocati sono specializzati nel trattare con le banche e i creditori e evitare che la tua casa venga messa all’asta. Ti liberiamo dal mutuo, dalle ipoteche e da eventuali altri prestiti in protesto.
Ti diamo modo di poter ricominciare a vivere una vita serena, senza più i pensieri dei debiti, del mutuo che non riesci a pagare, delle telefonate dei creditori, delle tante lettere nella posta, chiama Tel. 0331 784170
Caratteristiche principali
Codice:
V005971
Città:
Milano
Categoria:
Appartamento
Locali:
6,5
Bagni:
2
Mq:
111
Box:
1
Mq Box:
15
Balconi:
1
Mq Balcone:
8
Piano:
1
Classe energetica:
Non dichiarata
Riscaldamento:
Centralizzato
Tipo Riscaldam.:
Tele Riscaldamento
Tipo Impianto:
Radiatori
Accessori
Ascensore
Passaggio Automobilistico
Passaggio Pedonale
Porta Blindata
Ripostiglio
Mappa
Cookie preference