Appartamento con cantina e box auto

In vendita
Cabiate - Via Monte Grappa, 3
78.000 €
Appartamento
Categoria
72
m2
3,5
Locali
1
Camere
1
Bagni
1
Box
Descrizione
OTTIMA OCCASIONE - ASTA IMMOBILIARE
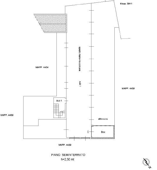
Appartamento posto al piano terra (rialzato) di una palazzina condominiale denominata "Residenza Bregoglio", con annessi locale cantina e locale box auto al piano seminterrato.
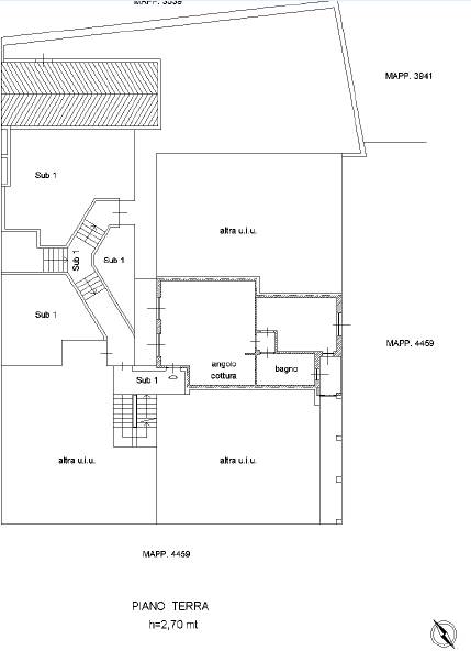
L'immobile è composto da ampio ingresso/soggiorno con angolo cottura, servito da veranda esterna antistante in lato sud-est, camera da letto, servita da loggia esterna antistante in lato nord-ovest e bagno.

"Biproget Group " è lo studio di consulenza che ti può accompagnare per tutto il percorso relativo all'acquisto tramite asta giudiziaria, compresa l'assistenza per le nuove procedure TELEMATICHE;
l'immobile viene venduto dal tribunale e il prezzo indicato si riferisce all'offerta minima, per assistenza e consulenza chiamare Tel. 0331784051
Possibilità di mutuo 100%, ulteriori vantaggi se acquisti la prima casa.

Caratteristiche principali
Codice:
V005965
Città:
Cabiate
Categoria:
Appartamento
Locali:
3,5
Camere:
1
Bagni:
1
Mq:
72
Box:
1
Mq Box:
16,93
Balconi:
2
Mq Balcone:
11,66
Piano:
Rialzato
Classe energetica:
Non dichiarata
Stato Immobile:
Buono
Riscaldamento:
Autonomo
Tipo Riscaldam.:
Caldaia
Tipo Impianto:
Radiatori
Accessori
Veranda
Mappa
Cookie preference