Appartamento in vendita a Brissago Valtravaglia

In vendita
Brissago Valtravaglia - Via Bernardino Luini, 18
85.800 €
Appartamento
Categoria
274
m2
1
Bagni
Descrizione
OTTIMA OCCASIONE - ASTA IMMOBILIARE
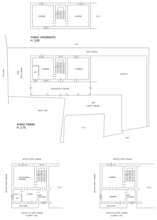
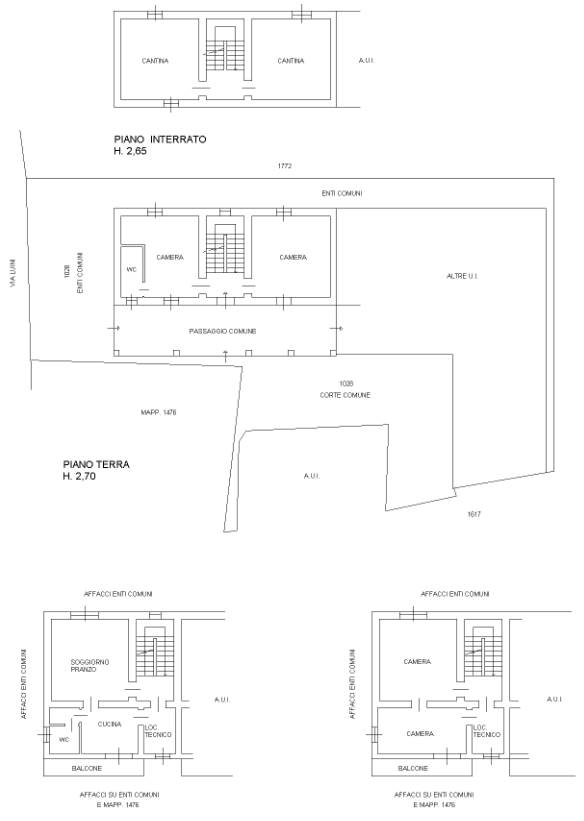
Unità immobiliare sviluppata ai piani S1-T-1-2, composta da due vani ad uso cantina a piano cantinato, da due vani attualmente ad uso sgombero e da un servizio igienico a piano terra, da vano soggiorno/pranzo, vano cucina, bagno e un balcone a piano primo, da due camere, un vano ad uso ripostiglio e un balcone a piano secondo, piano sottotetto e vano scala interno di collegamento a tutti i piani
-Unità immobiliare accessoria posta in corpo di fabbrica separato, sviluppata a piano T-1 e composta da due vani ad uso ripostiglio/deposito a piano terra e da un vano ad uso ripostiglio al piano primo. Al fabbricato accessorio compete area pertinenziale esclusiva

CONTATTACI SUBITO!
PER ESEGUIRE IN TOTALE SICUREZZA TUTTE LE PROCEDURE IN ASTA SERVONO ALCUNI GIORNI!

"Biproget Group " è lo studio di consulenza che ti può accompagnare per tutto il percorso relativo all'acquisto tramite asta giudiziaria, compresa l'assistenza per le nuove procedure TELEMATICHE;
l'immobile viene venduto dal tribunale e il prezzo indicato si riferisce all'offerta minima, per assistenza e consulenza chiamare Tel. 0331784051
Possibilità di mutuo 100%, ulteriori vantaggi se acquisti la prima casa.
Caratteristiche principali
Codice:
V005424
Città:
Brissago Valtravaglia
Categoria:
Appartamento
Locali:
9
Bagni:
1
Mq:
274
Classe energetica:
Non dichiarata
Mappa
Cookie preference