Appartamento in vendita a Novara

In vendita
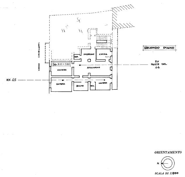
Novara - Corso Felice Cavallotti , 26/b
196.950 €
Appartamento
Categoria
144,25
m2
6,5
Locali
3
Camere
1
Bagni
Descrizione
OTTIMA OCCASIONE - ASTA IMMOBILIARE
Appartamento posto al secondo piano di una palazzina condominiale dotata di ascensore ubicata in zona centrale del Comune di Novara, composto da ingresso e cucina (c.a. 17,00 mq), ripostiglio (c.a. 1,50 mq), due disimpegni (rispettivamente c.a. 13,00 mq e c.a. 5,00 mq), quattro locali (rispettivamente c.a. 17,00 mq, c.a. 10,00 mq, c.a. 16,50 mq e c.a. 16,50 mq) e vano centrale termica esterno (c.a. 1,00 mq). Lungo il prospetto Sud è presente un balcone avente superficie di circa 12,50 mq.

"Biproget Group " è lo studio di consulenza che ti può accompagnare per tutto il percorso relativo all'acquisto tramite asta giudiziaria, compresa l'assistenza per le nuove procedure TELEMATICHE;
l'immobile viene venduto dal tribunale e il prezzo indicato si riferisce all'offerta minima, per assistenza e consulenza chiamare Tel. 0331/784170
Possibilità di mutuo 100%, ulteriori vantaggi se acquisti la prima casa.
· Hai problemi con le rate del mutuo?
· Hai ricevuto un pignoramento del tuo immobile?
· Hai già la tua casa all’asta con data fissata?
Il nostro Team di esperti Professionisti e Avvocati sono specializzati nel trattare con le banche e i creditori e evitare che la tua casa venga messa all’asta. Ti liberiamo dal mutuo, dalle ipoteche e da eventuali altri prestiti in protesto.
Ti diamo modo di poter ricominciare a vivere una vita serena, senza più i pensieri dei debiti, del mutuo che non riesci a pagare, delle telefonate dei creditori, delle tante lettere nella posta, chiama Tel. 0331 784170
Caratteristiche principali
Codice:
V006111
Città:
Novara
Categoria:
Appartamento
Locali:
6,5
Camere:
3
Bagni:
1
Mq:
144,25
Balconi:
1
Mq Balcone:
12,5
Piano:
2
Classe energetica:
Non dichiarata
Posizione:
Centro
Riscaldamento:
Autonomo
Tipo Riscaldam.:
Caldaia
Tipo Impianto:
Radiatori
Accessori
Ascensore
Ripostiglio
Mappa
Cookie preference