Appartamento in vendita a Cerro Maggiore

In vendita
Cerro Maggiore - Via Giuseppe Di Vittorio, 10
89.213 €
Appartamento
Categoria
67,03
m2
3
Locali
1
Camere
1
Bagni
1
Box
Descrizione
OTTIMA OCCASIONE - ASTA IMMOBILIARE
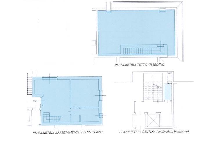
Appartamento con annesso box posto al terzo piano (ultimo) di una palazzina, facente parte di un più ampio complesso residenziale, denominato "Condominio Cerro Green", edificato a partire dal 2008, di complessivi quattro piani fuori terra e uno interrato.
L'unità immobiliare è composta da un soggiorno con spazio cottura a vista, disimpegno, camera da letto, servizio igienico; al piano superiore, collegato mediante una scala interna che si diparte dal locale soggiorno, si trova il tetto-giardino non abitabile.
Al piano interrato completano la proprietà la cantina pertinenziale e il box auto.

"Biproget Group " è lo studio di consulenza che ti può accompagnare per tutto il percorso relativo all'acquisto tramite asta giudiziaria, compresa l'assistenza per le nuove procedure TELEMATICHE;
l'immobile viene venduto dal tribunale e il prezzo indicato si riferisce all'offerta minima, per assistenza e consulenza chiamare Tel. 0331784051
Possibilità di mutuo 100%, ulteriori vantaggi se acquisti la prima casa.



Caratteristiche principali
Codice:
V006073
Città:
Cerro Maggiore
Categoria:
Appartamento
Locali:
3
Camere:
1
Bagni:
1
Mq:
67,03
Box:
1
Mq Box:
20
Terrazzi:
2
mq Terrazzo:
61,12
Piano:
3
Classe energetica:
B
Stato Immobile:
Buono
Riscaldamento:
Centralizzato
Tipo Riscaldam.:
Caldaia
Tipo Impianto:
Radiatori
Accessori
Ascensore
Passaggio Automobilistico
Passaggio Pedonale
Video Citofono
Mappa
Cookie preference