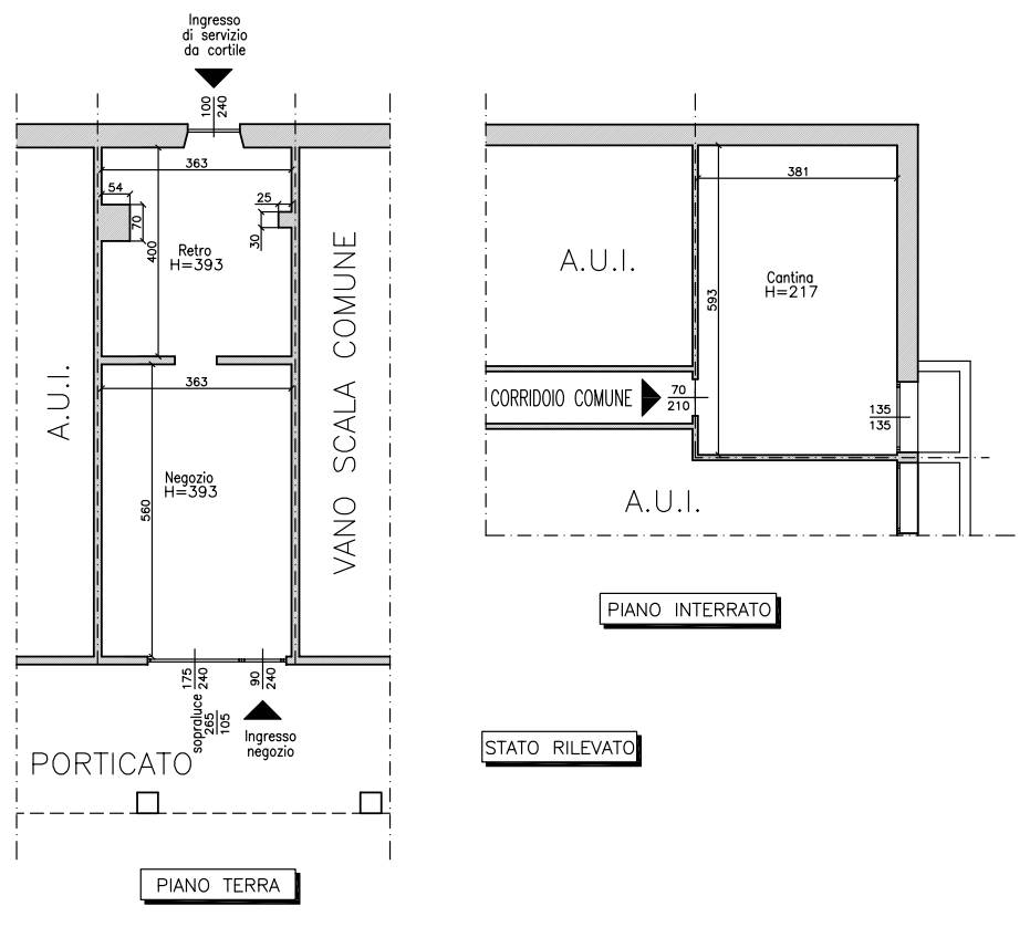
Negozio in vendita a Busto Arsizio

In vendita
Busto Arsizio - viale giotto, 11
13.800 €
Negozio
Categoria
44,45
m2
1
Bagni
Descrizione
negozio con annesso vano di cantina al piano sotterraneo della superficie commerciale di mq 44,45 - libero

CONTATTACI SUBITO!
PER ESEGUIRE IN TOTALE SICUREZZA TUTTE LE PROCEDURE IN ASTA SERVONO ALCUNI GIORNI!

"Biproget Group " è lo studio di consulenza che ti può accompagnare per tutto il percorso relativo all'acquisto tramite asta giudiziaria, compresa l'assistenza per le nuove procedure TELEMATICHE;
l'immobile viene venduto dal tribunale e il prezzo indicato si riferisce all'offerta minima, per assistenza e consulenza chiamare Tel. 0331.784.170
Caratteristiche principali
Codice:
V006040
Città:
Busto Arsizio
Categoria:
Negozio
Bagni:
1
Mq:
44,45
Classe energetica:
G
Mappa
Cookie preference