Appartamento con due camere, cantina, box auto doppio e giardino

In vendita
Dairago - Via Pirandello, 11
129.000 €
Appartamento
Categoria
94,12
m2
6
Locali
2
Camere
1
Bagni
1
Box
Descrizione
OTTIMA OCCASIONE - ASTA IMMOBILIARE
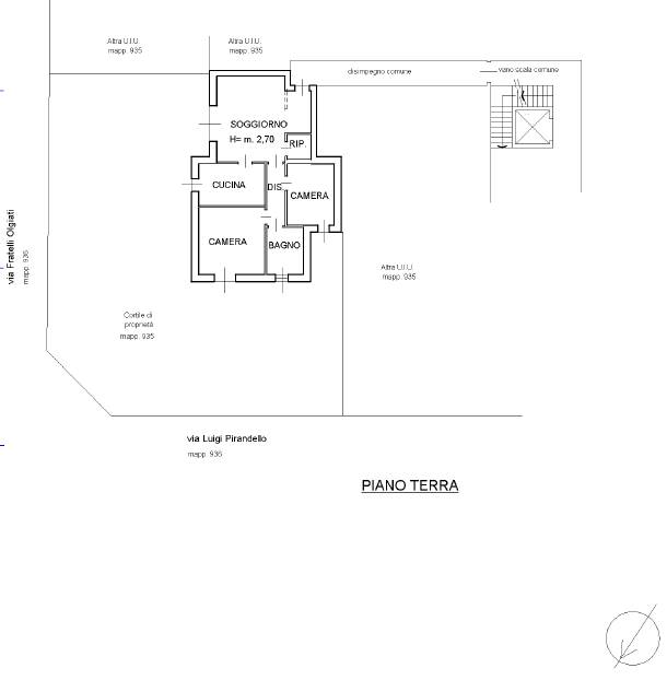
Appartamento posto al piano terra con giardino e disposto su un unico livello di una palazzina di tre piani fuori terra dotata di ascensore.
L'immobile è composto da soggiorno, cucina, un bagno, disimpegno, due camere, un ripostiglio e cortile di proprietà oltre a cantina al piano interrato e box auto doppio della consistenza di 33 mq posto al piano interrato.

"Biproget Group " è lo studio di consulenza che ti può accompagnare per tutto il percorso relativo all'acquisto tramite asta giudiziaria, compresa l'assistenza per le nuove procedure TELEMATICHE;
l'immobile viene venduto dal tribunale e il prezzo indicato si riferisce all'offerta minima, per assistenza e consulenza chiamare Tel. 0331784051
Possibilità di mutuo 100%, ulteriori vantaggi se acquisti la prima casa.

Caratteristiche principali
Codice:
V006036
Città:
Dairago
Categoria:
Appartamento
Locali:
6
Camere:
2
Bagni:
1
Mq:
94,12
Box:
1
Mq Box:
33
Mq Giardino:
224
Piano:
Terra
Classe energetica:
Non dichiarata
Stato Immobile:
Buono
Riscaldamento:
Centralizzato
Tipo Riscaldam.:
Caldaia
Tipo Impianto:
Pavimento
Accessori
Ascensore
Ripostiglio
Mappa
Cookie preference