Villa in vendita a Galliate

In vendita
Galliate - Via XXV Aprile, 89
141.750 €
Villa
Categoria
249,23
m2
8,5
Locali
2
Camere
3
Bagni
1
Box
1
Posti auto
Descrizione
OTTIMA OCCASIONE - ASTA IMMOBILIARE
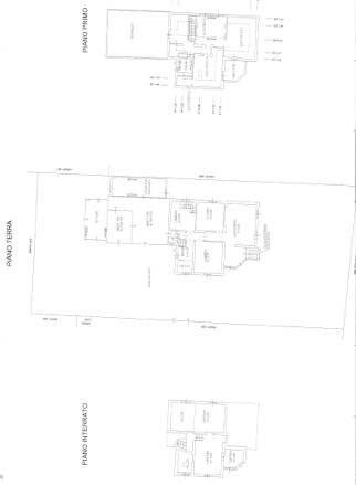
VILLA INDIPENDENTE con ampio sedime di pertinenza sviluppata su due piani fuori terra e un piano seminterrato.
a) L’abitazione è costituita, al piano rialzato, da: ingresso/soggiorno, cucina, disimpegno, due camere ed un bagno. Sono inoltre presenti una scala verso il sottotetto di circa 4,00 mq e una scala verso il piano seminterrato di circa 4,50 mq.
Il piano primo (sottotetto) è costituito da: disimpegno, bagno e tre locali.
Al piano seminterrato si trovano un locale centrale termica e tre locali cantina/ taverna.
Al piano sottotetto è presente un balcone sul fronte sud e un terrazzo sul fronte nord.. Raggiungibili attraverso l’area esterna sono stati realizzati un locale di deposito di c.a. 20,00 mq calpestabili e 23,00 mq lordi e una tettoia.
L’area esclusiva ad uso cortile/giardino ha una superficie libera di circa 672 mq.
b) Laboratorio collocato al piano terreno e adiacente all’abitazione, costituito da un locale ed un bagno.
c) Autorimessa collocata al piano terreno e adiacente al laboratorio.

"Biproget Group " è lo studio di consulenza che ti può accompagnare per tutto il percorso relativo all'acquisto tramite asta giudiziaria, compresa l'assistenza per le nuove procedure TELEMATICHE;
l'immobile viene venduto dal tribunale e il prezzo indicato si riferisce all'offerta minima, per assistenza e consulenza chiamare Tel. 0331784051
Possibilità di mutuo 100%, ulteriori vantaggi se acquisti la prima casa.
Caratteristiche principali
Codice:
V005998
Città:
Galliate
Categoria:
Villa
Locali:
8,5
Camere:
2
Bagni:
3
Mq:
249,23
Box:
1
Mq Box:
16,5
Posti auto:
1
Mq Giardino:
672
Balconi:
1
Mq Balcone:
7,5
Terrazzi:
1
mq Terrazzo:
55,5
Piano:
Terra
Classe energetica:
Non dichiarata
Riscaldamento:
Autonomo
Tipo Riscaldam.:
Caldaia
Tipo Impianto:
Radiatori
Mappa
Cookie preference