Appartamento in vendita a Robecchetto con Induno

In vendita
Robecchetto con Induno - Via Vincenzo Monti, 3
35.400 €
Appartamento
Categoria
68
m2
3,5
Locali
1
Camere
1
Bagni
2
Box
Descrizione
OTTIMA OCCASIONE - ASTA IMMOBILIARE
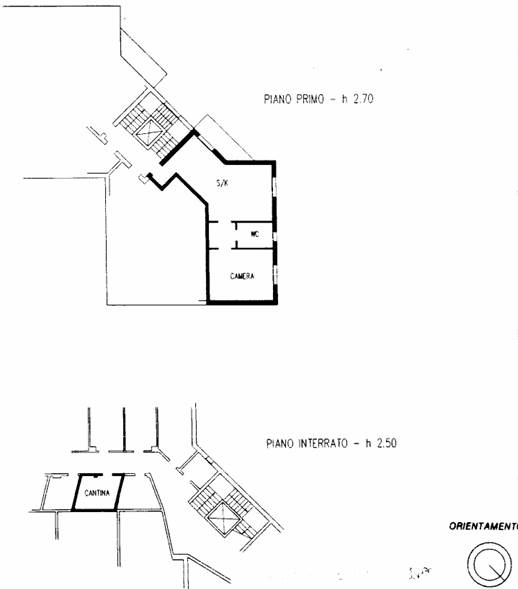
Appartamento posto al primo piano di un complesso condominiale
composto da ingresso, zona cucina-soggiorno, disimpegno, bagno, balcone e camera matrimoniale, oltre ad annessi e pertinenziali vano uso cantina e box autorimessa, ed ulteriore autorimessa singola posta al piano seminterrato.

"Biproget Group " è lo studio di consulenza che ti può accompagnare per tutto il percorso relativo all'acquisto tramite asta giudiziaria, compresa l'assistenza per le nuove procedure TELEMATICHE;
l'immobile viene venduto dal tribunale e il prezzo indicato si riferisce all'offerta minima, per assistenza e consulenza chiamare Tel. 0331784051
Possibilità di mutuo 100%, ulteriori vantaggi se acquisti la prima casa.
Caratteristiche principali
Codice:
V005959
Città:
Robecchetto con Induno
Categoria:
Appartamento
Locali:
3,5
Camere:
1
Bagni:
1
Mq:
68
Box:
2
Mq Box:
26
Balconi:
1
Mq Balcone:
5
Piano:
1
Classe energetica:
Non dichiarata
Riscaldamento:
Autonomo
Tipo Riscaldam.:
Caldaia
Tipo Impianto:
Radiatori
Accessori
Ascensore
Mappa
Cookie preference