Appartamento in vendita a Verona

In vendita
Verona - Via Adriano Cristofoli, 13
52.500 €
Appartamento
Categoria
175
m2
5,5
Locali
2
Camere
1
Bagni
Descrizione
OTTIMA OCCASIONE - ASTA IMMOBILIARE
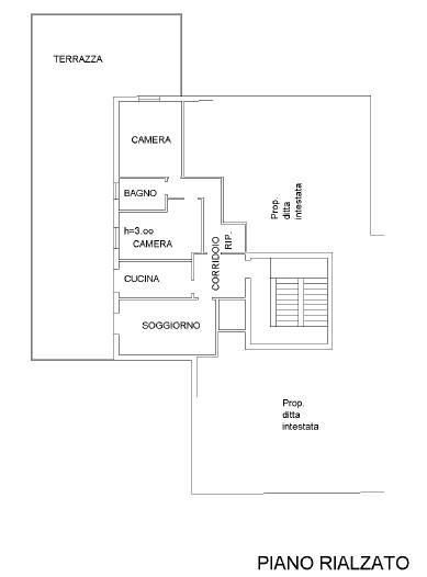
Appartamento al piano rialzato con ampia terrazza e annessa soffitta in edificio condominiale denominato "Palazzo Superdiamante" scala "A", dotato di ascensore.
L'immobile è composto da un corridoio, un soggiorno, una cucina, un ripostiglio, un bagno, due camere ed un ampia terrazza.
Il fabbricato è situato nel Quartiere "Stadio, in una zona semicentrale ubicata
a circa 3 Km. dal centro cittadino.

"Biproget Group " è lo studio di consulenza che ti può accompagnare per tutto il percorso relativo all'acquisto tramite asta giudiziaria, compresa l'assistenza per le nuove procedure TELEMATICHE;
l'immobile viene venduto dal tribunale e il prezzo indicato si riferisce all'offerta minima, per assistenza e consulenza chiamare Tel. 0331/784170
Possibilità di mutuo 100%, ulteriori vantaggi se acquisti la prima casa.
· Hai problemi con le rate del mutuo?
· Hai ricevuto un pignoramento del tuo immobile?
· Hai già la tua casa all’asta con data fissata?
Il nostro Team di esperti Professionisti e Avvocati sono specializzati nel trattare con le banche e i creditori e evitare che la tua casa venga messa all’asta. Ti liberiamo dal mutuo, dalle ipoteche e da eventuali altri prestiti in protesto.
Ti diamo modo di poter ricominciare a vivere una vita serena, senza più i pensieri dei debiti, del mutuo che non riesci a pagare, delle telefonate dei creditori, delle tante lettere nella posta, chiama Tel. 0331 784170

Caratteristiche principali
Codice:
V005955
Città:
Verona
Categoria:
Appartamento
Locali:
5,5
Camere:
2
Bagni:
1
Mq:
175
Terrazzi:
1
mq Terrazzo:
15,65
Piano:
Rialzato
Classe energetica:
Non dichiarata
Riscaldamento:
Autonomo
Tipo Riscaldam.:
Caldaia
Tipo Impianto:
Termosifoni
Accessori
Ascensore
Ripostiglio
Mappa
Cookie preference