Appartamento in vendita a Ceriale

In vendita
Ceriale - Localita' Palu - Via San Bernardo , 12
114.945 €
Appartamento
Categoria
62,8
m2
3,5
Locali
1
Camere
1
Bagni
1
Posti auto
Descrizione
OTTIMA OCCASIONE - ASTA IMMOBILIARE
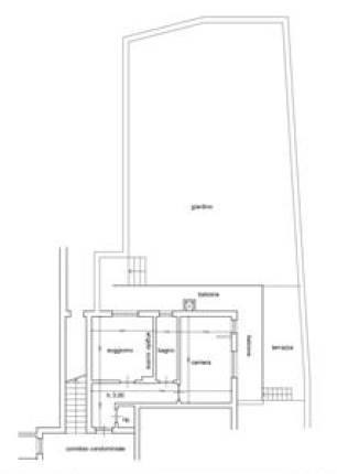
Appartamento in buono stato posto al piano terra, interno 1, scala A di un complesso edilizio denominato "Residenza la Pineta", composto da:
ingresso/corridoio disimpegno, soggiorno con angolo cottura, camera, ripostiglio e bagno, oltre ad un balcone dal quale si accede al giardino sottostante; è annessa una cantina al piano terra.
La posizione dell'immobile è comoda per raggiungere le spiagge di Ceriale, che distano circa 15-20 minuti a piedi.

"Biproget Group " è lo studio di consulenza che ti può accompagnare per tutto il percorso relativo all'acquisto tramite asta giudiziaria, compresa l'assistenza per le nuove procedure TELEMATICHE;
l'immobile viene venduto dal tribunale e il prezzo indicato si riferisce all'offerta minima, per assistenza e consulenza chiamare Tel. 0331784051
Possibilità di mutuo 100%, ulteriori vantaggi se acquisti la prima casa.

Caratteristiche principali
Codice:
V005938
Città:
Ceriale
Categoria:
Appartamento
Locali:
3,5
Camere:
1
Bagni:
1
Mq:
62,8
Posti auto:
1
Mq Giardino:
118
Balconi:
1
Mq Balcone:
30
Piano:
Terra
Classe energetica:
Non dichiarata
Stato Immobile:
Buono
Riscaldamento:
Centralizzato
Tipo Riscaldam.:
Caldaia
Tipo Impianto:
Radiatori
Mappa
Planimetrie
Cookie preference