Appartamento su due livelli con tre camere e due box auto

In vendita
Cerro Maggiore - Via Don Aquilino Marelli , 7
145.500 €
Appartamento
Categoria
157,51
m2
7
Locali
3
Camere
2
Bagni
2
Box
Descrizione
OTTIMA OCCASIONE - ASTA IMMOBILIARE
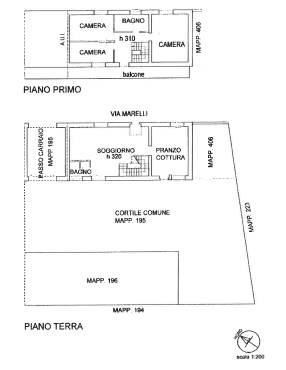
Abitazione in contesto cortilizio, distribuita su due livelli collegati da scala interna, composta da soggiorno, cucina e servizio igienico a piano terreno, con sovrastanti tre locali e servizio igienico al piano primo, nonché in corpo staccato interno alla corte un box auto posto a piano terreno con sovrastante rustico al piano primo ed adiacente un altro box auto posto al piano terreno con sovrastante rustico al piano primo.

"Biproget Group " è lo studio di consulenza che ti può accompagnare per tutto il percorso relativo all'acquisto tramite asta giudiziaria, compresa l'assistenza per le nuove procedure TELEMATICHE;
l'immobile viene venduto dal tribunale e il prezzo indicato si riferisce all'offerta minima, per assistenza e consulenza chiamare Tel. 0331784051
Possibilità di mutuo 100%, ulteriori vantaggi se acquisti la prima casa.

Caratteristiche principali
Codice:
V005902
Città:
Cerro Maggiore
Categoria:
Appartamento
Locali:
7
Camere:
3
Bagni:
2
Mq:
157,51
Box:
2
Mq Box:
48,3
Balconi:
1
Mq Balcone:
11,7
Piano:
Terra
Classe energetica:
Non dichiarata
Riscaldamento:
Autonomo
Tipo Riscaldam.:
Caldaia
Tipo Impianto:
Termosifoni
Mappa
Planimetrie
Cookie preference