Ufficio in vendita a Saronno

In vendita
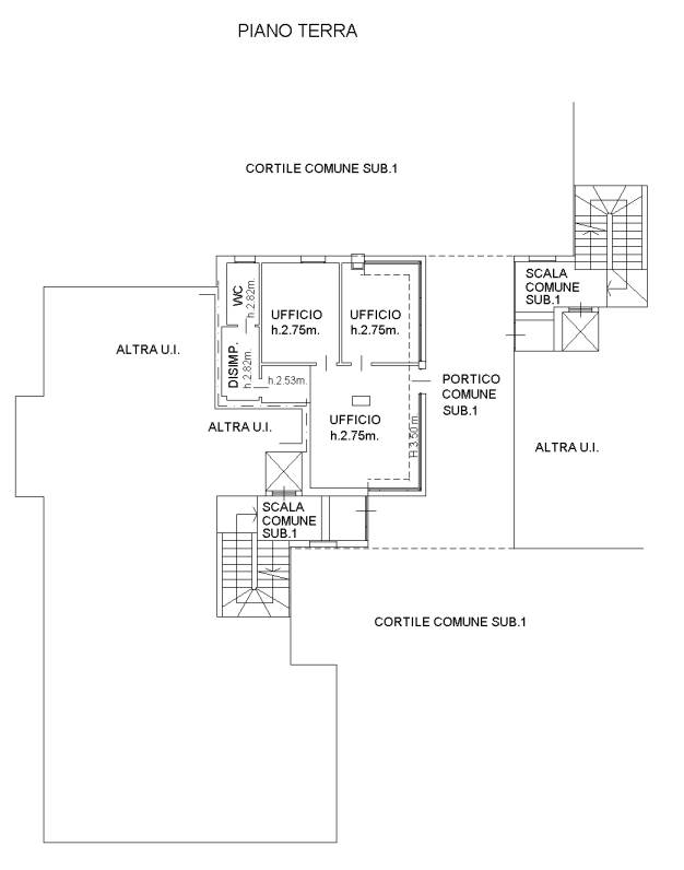
Saronno - Via P.Giuliani, 95
40.128 €
Ufficio
Categoria
62,93
m2
1
Box
Descrizione
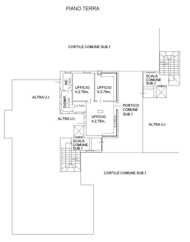
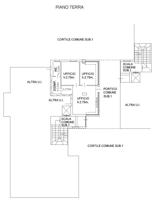
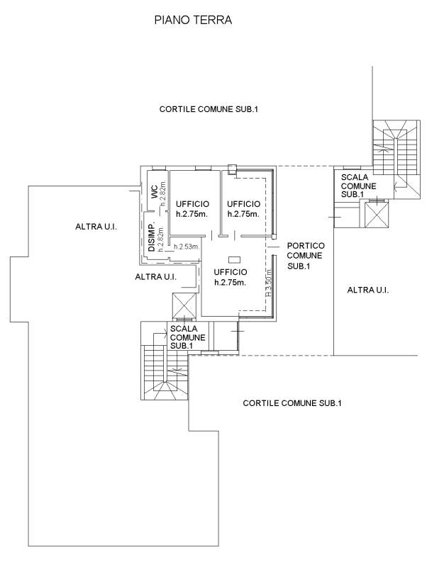
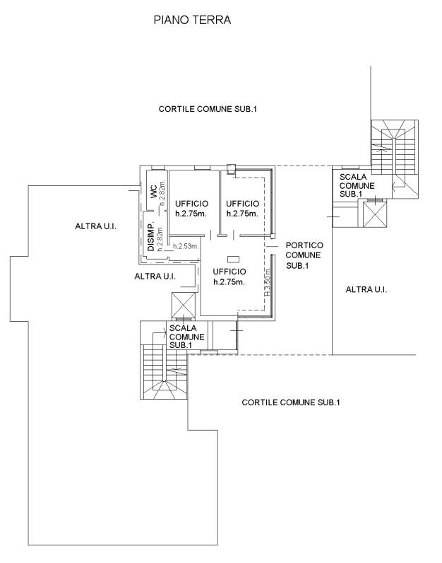
Ufficio con vetrina su strada, posto al piano terra con box auto al piano interrato E' situato alla periferia di Saronno, non lontano dalla stazione cittadina e dell'uscita autostradale. E' presente un piazzale a parcheggio, annesso al fabbricato, ad uso pubblico

CONTATTACI SUBITO!
PER ESEGUIRE IN TOTALE SICUREZZA TUTTE LE PROCEDURE IN ASTA SERVONO ALCUNI GIORNI!

"Biproget Group " è lo studio di consulenza che ti può accompagnare per tutto il percorso relativo all'acquisto tramite asta giudiziaria, compresa l'assistenza per le nuove procedure TELEMATICHE;
l'immobile viene venduto dal tribunale e il prezzo indicato si riferisce all'offerta minima, per assistenza e consulenza chiamare Tel. 0331.784.170
Caratteristiche principali
Codice:
V005882
Città:
Saronno
Categoria:
Ufficio
Mq:
62,93
Box:
1
Mq Box:
21,3
Classe energetica:
Non dichiarata
Mappa
Planimetrie
Cookie preference