Appartamento in vendita a Gorla Minore

In vendita
Gorla Minore - Via fam. terzaghi, 3
39.360 €
Appartamento
Categoria
94
m2
3
Locali
2
Camere
2
Bagni
1
Posti auto
Descrizione
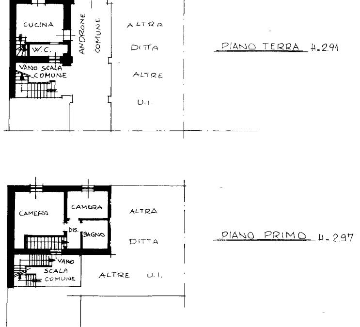
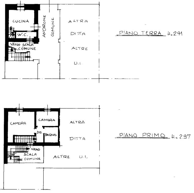
Appartamento ad uso abitazione, a parte di complesso condominiale denominato "Condominio di Via Terzaghi", posto al piano terra e primo, composto al piano terreno da locale ad uso cucina e servizio igienico ed al piano primo, collegato da scala interna, da due camere da letto, un disimpegno e un servi-zio igienico oltre ad annesso e pertinenziale posto auto scoperto posto all'interno del cortile condominiale.

CONTATTACI SUBITO!
PER ESEGUIRE IN TOTALE SICUREZZA TUTTE LE PROCEDURE IN ASTA SERVONO ALCUNI GIORNI!

"Biproget Group " è lo studio di consulenza che ti può accompagnare per tutto il percorso relativo all'acquisto tramite asta giudiziaria, compresa l'assistenza per le nuove procedure TELEMATICHE;
l'immobile viene venduto dal tribunale e il prezzo indicato si riferisce all'offerta minima, per assistenza e consulenza chiamare Tel. 0331.784.170
Possibilità di mutuo 100%, ulteriori vantaggi se acquisti la prima casa.
Caratteristiche principali
Codice:
V005856
Città:
Gorla Minore
Categoria:
Appartamento
Locali:
3
Camere:
2
Bagni:
2
Mq:
94
Posti auto:
1
Piano:
Terra
Classe energetica:
G
Mappa
Cookie preference