Appartamento in vendita a Cerano

In vendita
Cerano - Via Castello, 42
21.000 €
Appartamento
Categoria
84,2
m2
4,5
Locali
1
Camere
1
Bagni
Descrizione
OTTIMA OCCASIONE - ASTA IMMOBILIARE
Abitazione e locale deposito all’interno di una corte e raggiungibili dall’ingresso carraio di proprietà di terzi sul quale viene esercitata una servitù di passaggio. L’abitazione è costituita da:
- al piano terra da: ingresso (c.a. 4,50 mq), soggiorno (c.a. 14,00 mq), cucina (c.a. 7,00 mq);
- al piano primo da: disimpegno (c.a. 7,00 mq), camera (c.a. 15,00 mq) e bagno (c.a. 5,00 mq).
Corte esclusiva di c.a. 69,50 mq.
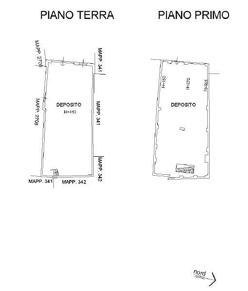
Incluso un locale ad uso deposito è disposto su due piani fuori terra.
L’unità ad uso deposito è divisa in: locale a piano terra di c.a. 47,00 mq netti ed un locale a piano primo di c.a. 50,50 mq netti.

"Biproget Group " è lo studio di consulenza che ti può accompagnare per tutto il percorso relativo all'acquisto tramite asta giudiziaria, compresa l'assistenza per le nuove procedure TELEMATICHE;
l'immobile viene venduto dal tribunale e il prezzo indicato si riferisce all'offerta minima, per assistenza e consulenza chiamare Tel. 0331/784170
Possibilità di mutuo 100%, ulteriori vantaggi se acquisti la prima casa.
· Hai problemi con le rate del mutuo?
· Hai ricevuto un pignoramento del tuo immobile?
· Hai già la tua casa all’asta con data fissata?
Il nostro Team di esperti Professionisti e Avvocati sono specializzati nel trattare con le banche e i creditori e evitare che la tua casa venga messa all’asta. Ti liberiamo dal mutuo, dalle ipoteche e da eventuali altri prestiti in protesto.
Ti diamo modo di poter ricominciare a vivere una vita serena, senza più i pensieri dei debiti, del mutuo che non riesci a pagare, delle telefonate dei creditori, delle tante lettere nella posta, chiama Tel. 0331 784170



Caratteristiche principali
Codice:
V005824
Città:
Cerano
Categoria:
Appartamento
Locali:
4,5
Camere:
1
Bagni:
1
Mq:
84,2
Balconi:
1
Mq Balcone:
2,5
Piano:
Terra
Classe energetica:
G
Riscaldamento:
Autonomo
Accessori
Aria Condizionata
Stufa a Pellet
Mappa
Cookie preference