Capannone prefabbricato

In vendita
Besozzo - Via per Ronco
79.500 €
Capannone
Categoria
357,42
m2
Descrizione
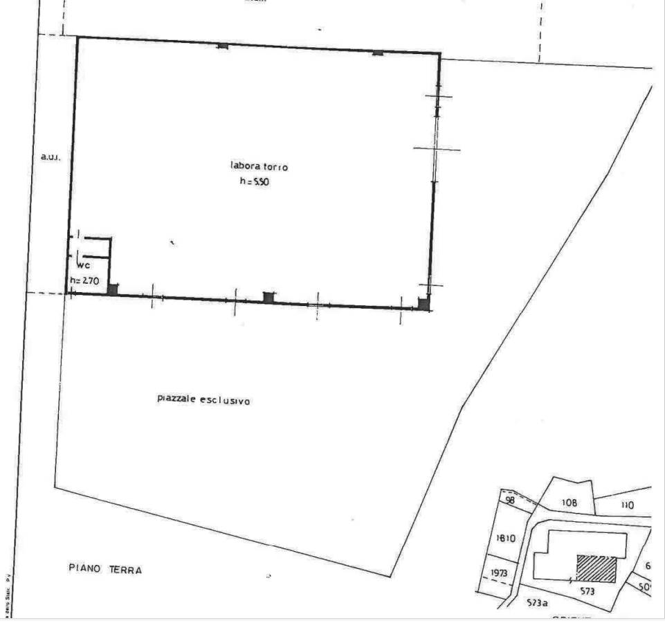
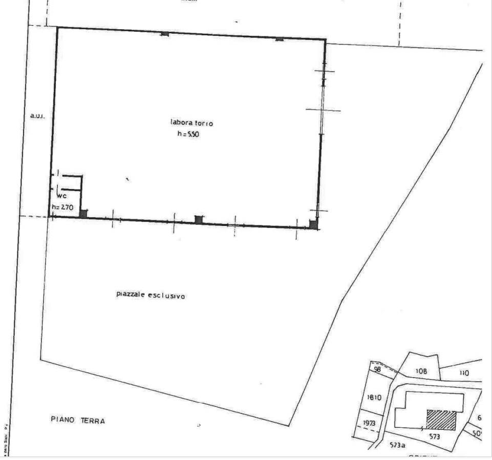
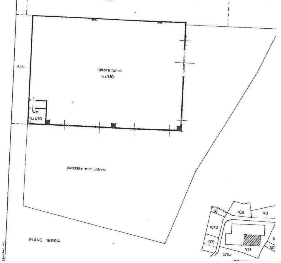
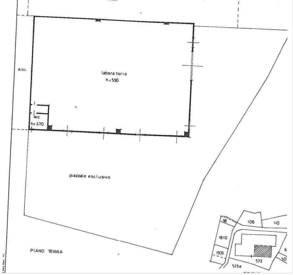
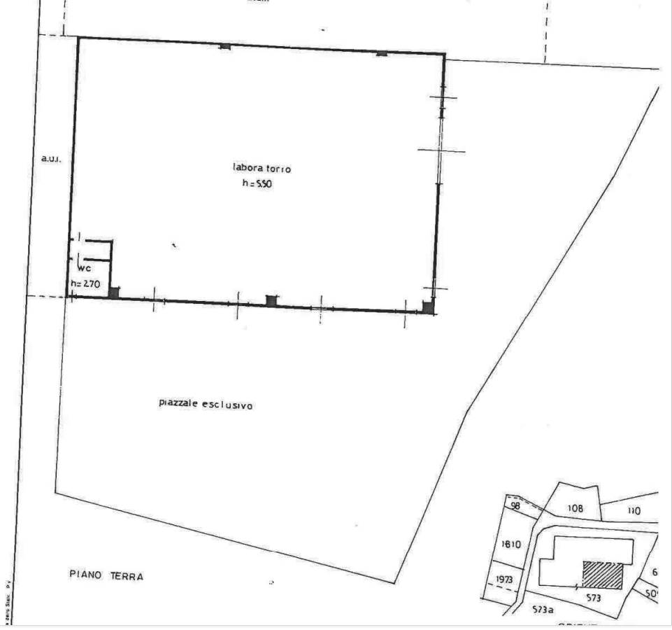
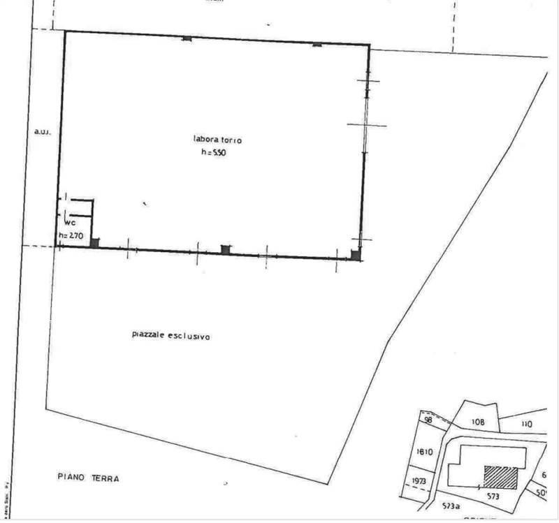
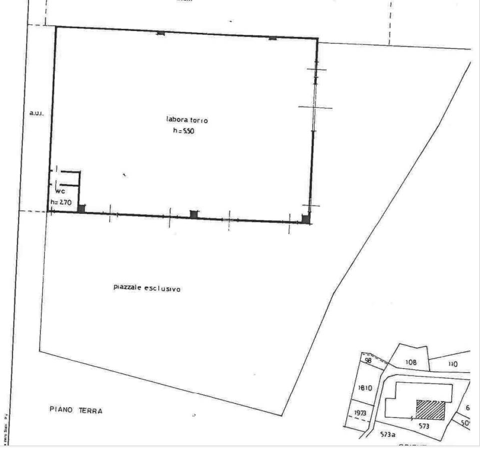
capannone industriale, con superficie 357,42 mq, con annessi un piccolo ufficio e servizi igienici, ed area esterna di proprietà, il cui accesso avviene da via per Ronco snc. Tale via è ubicata a breve distanza sia dalla SP50, che collega con i comuni di Gavirate ed Ispra, sia dalla SS629 che conduce al comune di Vergiate. Si colloca in una zona tranquilla ma comunque urbanizzata e di carattere prevalentemente industriale del comune, la struttura di tale unità immobiliare è interamente realizzata in cemento armato con elementi prefabbricato

CONTATTACI SUBITO!
PER ESEGUIRE IN TOTALE SICUREZZA TUTTE LE PROCEDURE IN ASTA SERVONO ALCUNI GIORNI!

"Biproget Group " è lo studio di consulenza che ti può accompagnare per tutto il percorso relativo all'acquisto tramite asta giudiziaria, compresa l'assistenza per le nuove procedure TELEMATICHE;
l'immobile viene venduto dal tribunale e il prezzo indicato si riferisce all'offerta minima, per assistenza e consulenza chiamare Tel. 0331.784.170


Caratteristiche principali
Codice:
V005793
Città:
Besozzo
Categoria:
Capannone
Mq:
357,42
Classe energetica:
Non dichiarata
Mappa
Planimetrie
Cookie preference