Appartamento con due cantine, box e giardino

In vendita
Mariano Comense - Via Alberto da Giussano , 33/B
64.000 €
Appartamento
Categoria
74,7
m2
4
Locali
1
Camere
1
Bagni
1
Box
Descrizione
OTTIMA OCCASIONE - ASTA IMMOBILIARE
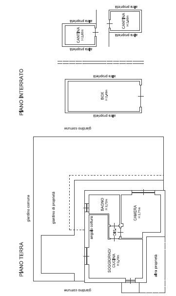
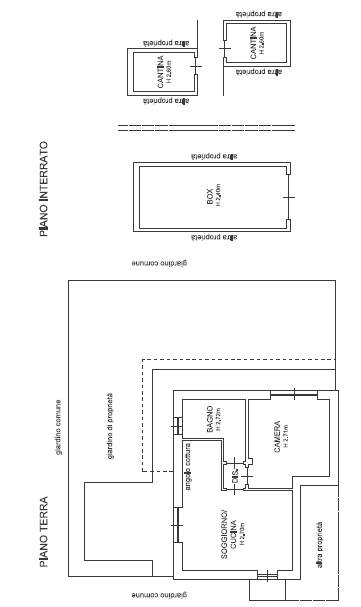
Appartamento posto al piano terra di una palazzina residenziale di tre piani fuori terra, costruita nel 2008, e inserita in un contesto residenziale al confine dell'area semicentrale di Mariano Comense.
L'appartamento si trova all'estremità più lontana dall'ingresso pedonale ed è composto da soggiorno con angolo cottura, disimpegno, camera e bagno, oltre a giardino di proprietà, delimitato da recinzione e siepe rispetto all'area verde condominiale.
Al piano seminterrato si trovano le due cantine abbinate all'appartamento, poste quasi frontalmente e divise dal corridoio condominiale di collegamento.
Dal corsello comune, posto sempre al piano seminterrato e raggiungibile sia a piedi da scala condominiale che con l'auto dalla rampa di accesso dalla strada, si raggiunge invece il box singolo.

"Biproget Group " è lo studio di consulenza che ti può accompagnare per tutto il percorso relativo all'acquisto tramite asta giudiziaria, compresa l'assistenza per le nuove procedure TELEMATICHE;
l'immobile viene venduto dal tribunale e il prezzo indicato si riferisce all'offerta minima, per assistenza e consulenza chiamare Tel. 0331/784170
Possibilità di mutuo 100%, ulteriori vantaggi se acquisti la prima casa.
· Hai problemi con le rate del mutuo?
· Hai ricevuto un pignoramento del tuo immobile?
· Hai già la tua casa all’asta con data fissata?
Il nostro Team di esperti Professionisti e Avvocati sono specializzati nel trattare con le banche e i creditori e evitare che la tua casa venga messa all’asta. Ti liberiamo dal mutuo, dalle ipoteche e da eventuali altri prestiti in protesto.
Ti diamo modo di poter ricominciare a vivere una vita serena, senza più i pensieri dei debiti, del mutuo che non riesci a pagare, delle telefonate dei creditori, delle tante lettere nella posta, chiama Tel. 0331 784170


Caratteristiche principali
Codice:
V005781
Città:
Mariano Comense
Categoria:
Appartamento
Locali:
4
Camere:
1
Bagni:
1
Mq:
74,7
Box:
1
Mq Box:
15,4
Mq Giardino:
107
Piano:
Terra
Classe energetica:
D
Riscaldamento:
Autonomo
Tipo Riscaldam.:
Caldaia
Tipo Impianto:
Radiatori
Mappa
Cookie preference