Appartamento trilocale con cantina e box

In vendita
Tradate - Via Sant'Ambrogio, 7
87.800 €
Appartamento
Categoria
86,59
m2
3
Locali
2
Camere
1
Bagni
2
Box
Descrizione
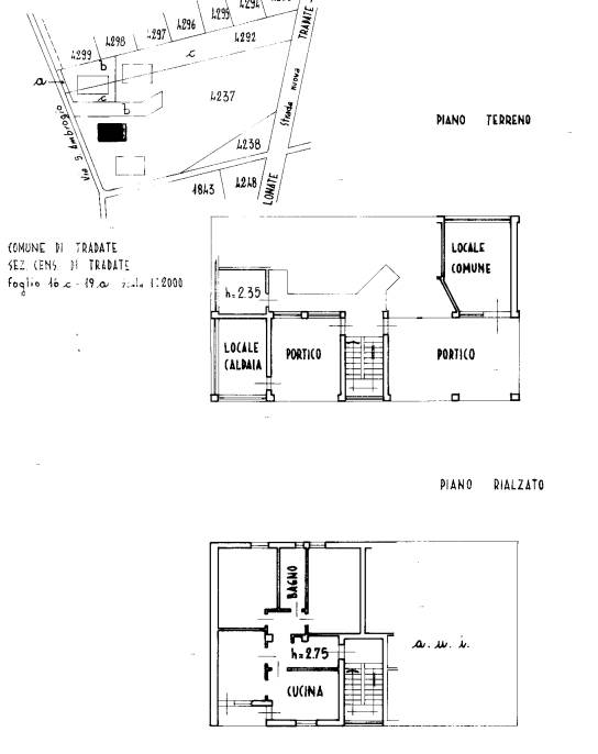
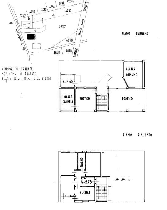
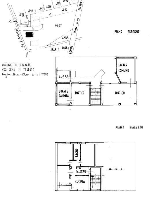
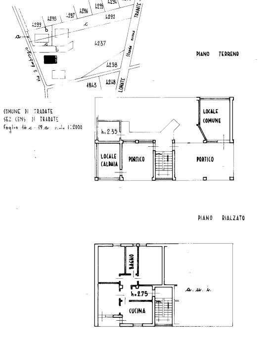
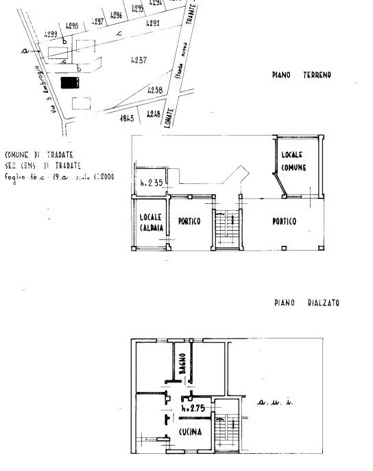
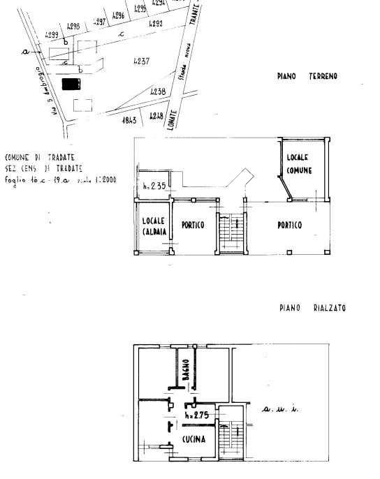
Appartamento con annessi cantina e due box, L’appartamento è composto da tre locali, posto al piano primo di più ampio complesso residenziale. La proprietà si completa con un balcone a servizio dei locali abitativi con una cantina al piano terra e due box

CONTATTACI SUBITO!
PER ESEGUIRE IN TOTALE SICUREZZA TUTTE LE PROCEDURE IN ASTA SERVONO ALCUNI GIORNI!

"Biproget Group " è lo studio di consulenza che ti può accompagnare per tutto il percorso relativo all'acquisto tramite asta giudiziaria, compresa l'assistenza per le nuove procedure TELEMATICHE;
l'immobile viene venduto dal tribunale e il prezzo indicato si riferisce all'offerta minima, per assistenza e consulenza chiamare Tel. 0331.784.170
Possibilità di mutuo 100%, ulteriori vantaggi se acquisti la prima casa.
Caratteristiche principali
Codice:
V005778
Città:
Tradate
Categoria:
Appartamento
Locali:
3
Camere:
2
Bagni:
1
Mq:
86,59
Box:
2
Balconi:
1
Mq Balcone:
3,16
Piano:
1
Classe energetica:
F
Mappa
Planimetrie
Cookie preference