appartamento

In vendita
Cadegliano Viconago - Via Pradaccio, 7
75.000 €
Appartamento
Categoria
121
m2
2
Locali
1
Camere
1
Bagni
Descrizione
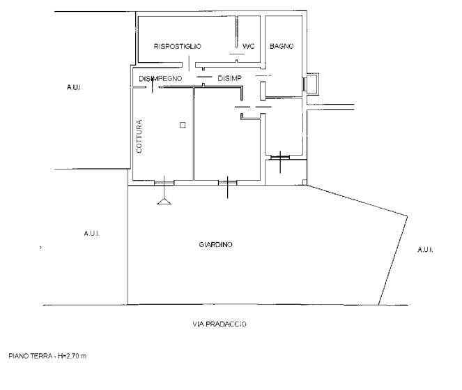
Abitazione collocata al piano terra di più ampio fabbricato residenziale composta da: soggiorno-ingresso-cucina , disimpegno, locale ripostiglio con WC/lavanderia, bagno, camera, locale accessorio con loggia. e terreno di 1000 mq staccato rispetto all’appartamento

CONTATTACI SUBITO!
PER ESEGUIRE IN TOTALE SICUREZZA TUTTE LE PROCEDURE IN ASTA SERVONO ALCUNI GIORNI!

"Biproget Group " è lo studio di consulenza che ti può accompagnare per tutto il percorso relativo all'acquisto tramite asta giudiziaria, compresa l'assistenza per le nuove procedure TELEMATICHE;
l'immobile viene venduto dal tribunale e il prezzo indicato si riferisce all'offerta minima, per assistenza e consulenza chiamare Tel. 0331.784.170
Possibilità di mutuo 100%, ulteriori vantaggi se acquisti la prima casa.




Caratteristiche principali
Codice:
V005722
Città:
Cadegliano Viconago
Categoria:
Appartamento
Locali:
2
Camere:
1
Bagni:
1
Mq:
121
Piano:
Terra
Classe energetica:
Non dichiarata
Mappa
Cookie preference