Porzione di villa bifamiliare con autorimessa e giardino

In vendita
Castano Primo - Via Cassino, 7
123.000 €
Porzione Villa
Categoria
135,42
m2
6,5
Locali
2
Camere
2
Bagni
1
Box
Descrizione
OTTIMA OCCASIONE - ASTA IMMOBILIARE
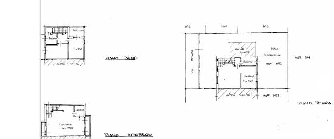
Porzione di Villa bifamiliare composta:
da un locale cantina e un locale lavanderia al piano interrato;
soggiorno, cucina e bagno al piano terra;
due camere, bagno e balconi al piano primo;
con annessa autorimessa esterna al perimetro del fabbricato ed
area cortilizia pertinenziale.
L’accesso alle unità si ha da via Cassino tramite strada privata di
accesso, gravata da servitù di passo pedonale e carraio a favore di tutti i dodici lotti delle altre porzioni di ville bifamiliari.

"Biproget Group " è lo studio di consulenza che ti può accompagnare per tutto il percorso relativo all'acquisto tramite asta giudiziaria, compresa l'assistenza per le nuove procedure TELEMATICHE;
l'immobile viene venduto dal tribunale e il prezzo indicato si riferisce all'offerta minima, per assistenza e consulenza chiamare Tel. 0331/784170
Possibilità di mutuo 100%, ulteriori vantaggi se acquisti la prima casa.
· Hai problemi con le rate del mutuo?
· Hai ricevuto un pignoramento del tuo immobile?
· Hai già la tua casa all’asta con data fissata?
Il nostro Team di esperti Professionisti e Avvocati sono specializzati nel trattare con le banche e i creditori e evitare che la tua casa venga messa all’asta. Ti liberiamo dal mutuo, dalle ipoteche e da eventuali altri prestiti in protesto.
Ti diamo modo di poter ricominciare a vivere una vita serena, senza più i pensieri dei debiti, del mutuo che non riesci a pagare, delle telefonate dei creditori, delle tante lettere nella posta, chiama Tel. 0331 784170
Caratteristiche principali
Codice:
V005707
Città:
Castano Primo
Categoria:
Porzione Villa
Locali:
6,5
Camere:
2
Bagni:
2
Mq:
135,42
Box:
1
Mq Box:
16,5
Mq Giardino:
270
Balconi:
1
Piano:
Terra
Classe energetica:
Non dichiarata
Riscaldamento:
Autonomo
Tipo Riscaldam.:
Caldaia
Tipo Impianto:
Radiatori
Accessori
Lavanderia
Passaggio Automobilistico
Ripostiglio
Mappa
Cookie preference