Capannoni Industriali

In vendita
Leggiuno - via Dante Alighieri, 1
517.500 €
Capannone
Categoria
70518
m2
Descrizione
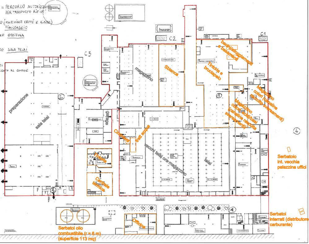
OTTIMA OCCASIONE - ASTA IMMOBILIARE
Capannoni industriali e terreni per una consistenza commerciale di circa 70.518,00 mq

CONTATTACI SUBITO!
PER ESEGUIRE IN TOTALE SICUREZZA TUTTE LE PROCEDURE IN ASTA SERVONO ALCUNI GIORNI!

"Biproget Group " è lo studio di consulenza che ti può accompagnare per tutto il percorso relativo all'acquisto tramite asta giudiziaria, compresa l'assistenza per le nuove procedure TELEMATICHE;
l'immobile viene venduto dal tribunale e il prezzo indicato si riferisce all'offerta minima, per assistenza e consulenza chiamare Tel. 0331.784.170
Caratteristiche principali
Codice:
V005634
Città:
Leggiuno
Categoria:
Capannone
Mq:
70518
Classe energetica:
Non dichiarata
Mappa
Cookie preference