Casa indipendente con ampio giardino

In vendita
Sangiano - Via IV Novembre
137.856 €
Casa singola
Categoria
472
m2
14,5
Locali
6
Camere
2
Bagni
2
Box
Descrizione
OTTIMA OCCASIONE - ASTA IMMOBILIARE

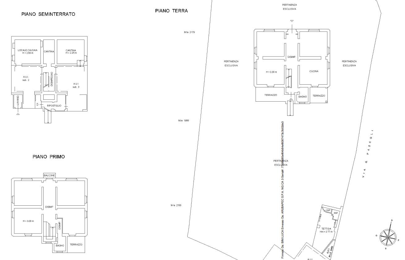
Abitazione su due livelli fuori terra, oltre ad un piano seminterrato, oltre area esterna e piccolo accessorio
-piano terra da ingresso/disimpegno, soggiorno, cucina, due camere ed un bagno (oltre a due terrazzi)
-piano primo si trovano ulteriori quattro stanze, un corridoio ed un bagno (oltre ad un terrazzo).
-piano seminterrato si trovano due cantine, un locale caldaia, un disimpegno ed un ripostiglio oltre a due box auto (censiti in con subalterni autonomi). Completa la proprietà un’ampia area esterna ed un piccolo accessorio in corpo staccato.

CONTATTACI SUBITO!
PER ESEGUIRE IN TOTALE SICUREZZA TUTTE LE PROCEDURE IN ASTA SERVONO ALCUNI GIORNI!

"Biproget Group " è lo studio di consulenza che ti può accompagnare per tutto il percorso relativo all'acquisto tramite asta giudiziaria, compresa l'assistenza per le nuove procedure TELEMATICHE;
l'immobile viene venduto dal tribunale e il prezzo indicato si riferisce all'offerta minima, per assistenza e consulenza chiamare Tel. 0331784051
Possibilità di mutuo 100%, ulteriori vantaggi se acquisti la prima casa.
Caratteristiche principali
Codice:
V005617
Città:
Sangiano
Categoria:
Casa singola
Locali:
14,5
Camere:
6
Bagni:
2
Mq:
472
Box:
2
Mq Box:
60
Mq Giardino:
1150
Mq Balcone:
11
Terrazzi:
2
mq Terrazzo:
26
Classe energetica:
Non dichiarata
Mappa
Cookie preference