Casa con giardino e 2 posti auto

In vendita
Fagnano Olona - Via l. cadorna, 61
84.000 €
Porzione di Casa
Categoria
230,56
m2
5
Locali
4
Camere
2
Posti auto
Descrizione
OTTIMA OCCASIONE - ASTA IMMOBILIARE
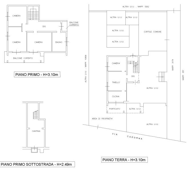
Porzione di casa bifamiliare, appartamento indipendente composto da da cantina al piano interrato, tre locali al piano terra, tre locali più servizi e porticato al primo piano con scala interna oltre a terreno di proprietà esclusiva, oltre a due posti auto.

CONTATTACI SUBITO!
PER ESEGUIRE IN TOTALE SICUREZZA TUTTE LE PROCEDURE IN ASTA SERVONO ALCUNI GIORNI!

"Biproget Group " è lo studio di consulenza che ti può accompagnare per tutto il percorso relativo all'acquisto tramite asta giudiziaria, compresa l'assistenza per le nuove procedure TELEMATICHE;
l'immobile viene venduto dal tribunale e il prezzo indicato si riferisce all'offerta minima, per assistenza e consulenza chiamare Tel. 0331784051
Possibilità di mutuo 100%, ulteriori vantaggi se acquisti la prima casa.
Caratteristiche principali
Codice:
V005565
Città:
Fagnano Olona
Categoria:
Porzione di Casa
Locali:
5
Camere:
4
Mq:
230,56
Posti auto:
2
Mq Giardino:
50,5
Classe energetica:
Non dichiarata
Mappa
Cookie preference