Magazzino e due appartamenti

In vendita
Saronno - Via roma, 68
167.250 €
Foto
Appartamento
Categoria
260
m2
3
Camere
1
Bagni
1
Box
Descrizione
OTTIMA OCCASIONE - ASTA IMMOBILIARE
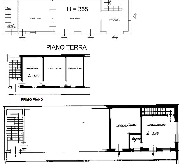
a) deposito facente parte di edificio a due piani sito in Via Roma n. 70, posto al piano terra e composto da tre locali adibiti a magazzino, di cui uno provvisto di scala interna che lo collega con l’appartamento al piano superiore
b) appartamento facente parte di edificio “a ballatoio”, sito in Via Roma n. 70, posto al piano primo e composto da tre locali
c) appartamento facente parte di edificio “a ballatoio”, sito in Via Roma n. 70, posto al piano primo e composto da due locali e bagno
d) autorimessa sita al piano terreno in corpo di fabbrica al confine di proprietà, con area cortilizia pertinenziale, sita in Via Roma n. 68/70 e) deposito sito in Via Roma n. 68/70

CONTATTACI SUBITO!
PER ESEGUIRE IN TOTALE SICUREZZA TUTTE LE PROCEDURE IN ASTA SERVONO ALCUNI GIORNI!

"Biproget Group " è lo studio di consulenza che ti può accompagnare per tutto il percorso relativo all'acquisto tramite asta giudiziaria, compresa l'assistenza per le nuove procedure TELEMATICHE;
l'immobile viene venduto dal tribunale e il prezzo indicato si riferisce all'offerta minima, per assistenza e consulenza chiamare Tel. 0331784051
Possibilità di mutuo 100%, ulteriori vantaggi se acquisti la prima casa.
Caratteristiche principali
Codice:
V005560
Città:
Saronno
Categoria:
Appartamento
Camere:
3
Bagni:
1
Mq:
260
Box:
1
Classe energetica:
Non dichiarata
Mappa
Cookie preference